Attraktive Büroeinheit in Wolfen-Nord zu vermieten !

Wohnung | Miete | Wolfen-Nord

Objektbeschreibung

Zur Vermietung steht eine attraktive Gewerbeeinheit in der Fritz-Weineck-Straße 14 a in Wolfen-Nord, welche ab sofort bezogen werden kann. Die Büroeinheit befindet sich im 2. Obergeschoss eines Wohnkomplexes. Bereits im Erdgeschoss sowie im 1. Obergeschoss sind Büroflächen vorhanden, die vom Vermieter selbst genutzt werden.
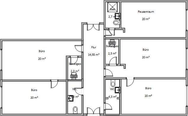
Mit einer Gesamtfläche von ca. 130 m² bietet die angebotene Gewerbeeinheit ausreichend Platz für Ihre geschäftlichen Aktivitäten. Die Räumlichkeiten sind hell und freundlich und überzeugen durch eine optimale Aufteilung Sie eignen sich dadurch für verschiedene Nutzungskonzepte.

Das Büro ist sowohl über eine Treppe als auch bequem mit einem Fahrstuhl erreichbar. Vier großzügige Büroräume mit einer Fläche von jeweils ca. 22 m² bieten ausreichend Platz für Team- oder Einzelbüros.
Zwei separate Toiletten sowie ein kleines Bad mit Dusche und WC sorgen für einen hohen Komfort.
Ein Aufenthaltsraum mit eingebauter Küche steht für die Pausen zur Verfügung.
Zwei kleine Abstellräume bieten Platz für Drucker, Archiv oder Lagerbedarf.

Für angenehme Temperaturen auf der gesamten Etage sorgt eine Klimaanlage.

Eine bereits installierte moderne Photovoltaikanlage ermöglicht eine umweltfreundliche und kosteneffiziente Stromversorgung. Diese nachhaltige Stromgewinnung trägt dazu bei, die Betriebskosten zu senken.


Die Immobilie liegt in einer ruhigen, gut angebundenen Gegend von Wolfen-Nord. Dank der verkehrsgünstigen Lage sind sowohl die Innenstadt als auch umliegende Geschäftsbereiche schnell erreichbar.

Parkmöglichkeiten können nach Abstimmung zur Verfügung gestellt werden.

Fazit:

Diese Gewerbeeinheit eignet sich ideal für kleine Unternehmen aus verschiedenen Branchen, die eine repräsentative und funktionale Arbeitsumgebung suchen.

Bei Anmietung der Räumlichkeiten fallen Genossenschaftsanteile in Höhe von 1.232,00 € an.

Für weitere Informationen oder eine Besichtigung stehen wir Ihnen gern zur Verfügung!

Kaufpreis

Auf Anfrage

Kaltmiete

1.300,00 €

Nebenkosten

302,00 €

Heizkosten

195,00 € €

Kaution

1.232,00 €

Warmmiete
1.797,00€

Objektdaten

Ref.- Nr.

84066425

Objektart

Wohnung

Wohnfläche

130,00 qm

Zimmer

5

Etage

2

Baujahr

1975

Aufzug

Lastenaufzug

Böden

Fliesenboden, Linoleum

derzeitige Nutzung

frei

Fenster

Kunststofffenster

Kommunikation

DSL-Anschluss

Küche

Pantry

Preisinfo

provisionsfrei

Sicherheitstechnik

Alarmanlage

Zustand

gepflegt, renoviert, saniert
84066425
130,00 qm
5
1975
Wohnung
2

Aufzug

Lastenaufzug

Böden

Fliesenboden, Linoleum

derzeitige Nutzung

frei

Fenster

Kunststofffenster

Kommunikation

DSL-Anschluss

Küche

Pantry

Preisinfo

provisionsfrei

Sicherheitstechnik

Alarmanlage

Zustand

gepflegt, renoviert, saniert

Energiedaten

Verbrauchsausweis

112 kWh (m²*a)

Energieausweistyp

Verbrauchsausweis

Ausweis gültig bis

04.02.2028

Energieträger

Fernwärme, Solar

Heizungsart

Zentralheizung

Verbrauchsausweis

112 kWh (m²*a)
Verbrauchsausweis
Fernwärme, Solar
04.02.2028
Zentralheizung

Lagebeschreibung

Die Fritz-Weineck-Straße befindet sich in einem Wohnviertel von Wolfen-Nord. Die Lage zeichnet sich besonders für seine kurzen Wege aus. So sind alle Dinge des täglichen Bedarfs, wie z.Bsp. Einkaufsmöglichkeiten, Ärzte, Apotheken, Bankfiliale, fußläufig gut zu erreichen sowie die Haltestellen des öffentlichen Nahverkehrs. Auch Schulen und Kindergärten befindet sich in der Nähe.
Ebenso schnell unternommen sind Ausflüge in die Fuhneaue, welche mit viel Natur für Spaziergänge einlädt. Für Wasserbegeisterte lohnt sich der Besuch des Freizeitbades „Woliday“ mit seinem Bade- und Saunavergnügen.

Objektanschrift

06766 Bitterfeld-Wolfen
Fritz-Weineck-Str. 14 a

Sonstiges

Wenn wir Ihr Interesse geweckt haben, dann freuen wir uns auf Ihre Anfrage !

Für Rückfragen und Informationen steht Ihnen Frau Meinicke unter der Tel.-Nr.: 03494/ 3673-29 oder E-Mail: meinicke@wgwolfen.de gern zur Verfügung.

Haben wir Ihr Interesse geweckt?

Vereinbaren Sie mit uns einen Besichtigungstermin und machen Sie sich ein eigenes Bild. Wir freuen uns auf Sie!
Andrea Meinicke
03494/3673-29
Grit Seidlitz
03494367332
Wichtige Dokumente, die wir von Ihnen brauchen:

Kontakt

Sie wollen mehr erfahren oder einen Besichtigungstermin vereinbaren?
Dann nehmen Sie gern hier direkt Kontakt mit uns auf.
Wohnungs-
Genossenschaft
Wolfen EG
Frau Grit Seidlitz
Fritz-Weineck-Straße 14a,
06766 Bitterfeld-Wolfen


    captcha

    Bitte den Captcha-Code aus dem Bild hier eingeben:


    Welche Daten im Einzelnen gespeichert werden und wer Zugriff hat, erfahren Sie in unseren Datenschutzbedingungen.

    Ich stimme der Speicherung und Nutzung meiner Daten laut der Datenschutzerklärung zu und bin mit der Verarbeitung meiner Daten durch den Anbieter für die Beantwortung meiner Kontakt- und Informationsanfrage einverstanden.

    Meine Einwilligung kann ich jederzeit für die Zukunft wiederrufen.