Platz für die Familie – Wir sanieren für Sie 4-Raumwohnungen in Sandersdorf !

Wohnung | Miete | Sandersdorf

Objektbeschreibung

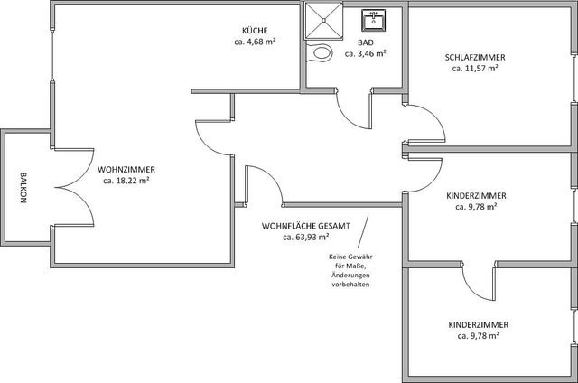
Die angebotenen 4-Raum-Wohnungen mit einer Fläche von je rd. 64 qm befinden sich im 3. Obergeschoss eines Wohnkomplexes in Sandersdorf. Die Raumaufteilung eignet sich ideal für Paare, kleine Familien oder alle, die sich mehr Raum zum Wohnen und Arbeiten wünschen.
Beim Betreten der Wohnung empfängt Sie ein Flur, von dem aus alle Hauptbereiche der Wohnungen zu erreichen sind.
Die Wohnungen verfügen über vier helle Zimmer, die individuell als Wohn-, Schlaf-, Arbeits- oder Kinderzimmer genutzt werden können.
Das Wohnzimmer mit seiner offenen, innenliegenden Küche bildet den Mittelpunkt dieser Wohnungen.
Das Bad ist ohne Fenster, aber praktisch durchdacht. Mit einer Dusche ausgestattet hat hier auch der Waschmaschinenanschluss seinen Platz.
Ein Balkon, welcher vom Wohnzimmer aus zugänglich ist, rundet das Gesamtpaket ab.
Aktuell befinden sich die Wohnungen noch im unsanierten Zustand. Die Sanierung wird umgehend dann in Auftrag gegeben, sowie ein Mieter gefunden wurde. So können auch kleinere Änderungswünsche des Mieters ggf. berücksichtigt werden.
Zu den geplanten Sanierungsmaßnahmen zählen unter anderem:
•Kompletterneuerung der Sanitäranlagen und des Badezimmers
•Erneuerung der Elektrik und Installationen
•Neue Fußbodenbeläge in allen Räumen (PVC-Beleg in Laminatoptik)
•Renovierung der Wände und Decken
•Neue Türen
•Küche mit Fliesenspiegel
Diese Wohnungen werden nach Abschluss der Sanierung durch moderne Ausstattungen und eine freundliche Raumgestaltung überzeugen.

Zur jeweiligen Wohnung gehört auch ein separates Kellerabteil dazu.

Stellplätze sind ausreichend in der näheren Umgebung vorhanden.

Besichtigungen sind jedoch bereits jetzt möglich, sodass Sie sich schon einen Eindruck von den Raumaufteilungen und der Lage verschaffen könne

Kaufpreis

Auf Anfrage

Kaltmiete

448,00 €

Nebenkosten

141,00 €

Heizkosten

100,00 € €

Kaution

1.232,00 €

Warmmiete
689,00€

Objektdaten

Ref.- Nr.

84504340

Objektart

Wohnung

Wohnfläche

63,93 qm

Zimmer

4

Etage

3

Baujahr

1978

Balkon/Terrasse

Balkon

Böden

Fliesenboden, Linoleum

derzeitige Nutzung

frei werdend

Fenster

Kunststofffenster

Kommunikation

DSL-Anschluss

Küche

offene Küche

Sanitär

Bad mit Dusche

Sonstiges/Wohnen

Kelleranteil

TV

Kabelanschluss

Versorgung

eigene Stromversorgung

Zustand

renoviert, saniert
84504340
63,93 qm
4
1978
Wohnung
3

Balkon/Terrasse

Balkon

Böden

Fliesenboden, Linoleum

derzeitige Nutzung

frei werdend

Fenster

Kunststofffenster

Kommunikation

DSL-Anschluss

Küche

offene Küche

Sanitär

Bad mit Dusche

Sonstiges/Wohnen

Kelleranteil

TV

Kabelanschluss

Versorgung

eigene Stromversorgung

Zustand

renoviert, saniert

Energiedaten

Verbrauchsausweis

38.2 kWh (m²*a)

Energieausweistyp

Verbrauchsausweis

Ausweis gültig bis

26.09.2032

Energieträger

Erdwärme

Heizungsart

Zentralheizung

Verbrauchsausweis

38.2 kWh (m²*a)
Verbrauchsausweis
Erdwärme
26.09.2032
Zentralheizung

Lagebeschreibung

Sandersdorf befindet sich im Norden der Stadt zwischen Zörbig im Westen und Bitterfeld-Wolfen im Osten.
Östlich des Orts verlaufen die Bundesstraßen 183 und 184.
Sandersdorf ist auf Grund seiner ruhigen Wohnlage sehr beliebt. Auch die Nähe zur Natur, hier insbesondere die Förstergrube, welche im Sommer für Abkühlung sorgt, ist für die Anwohner eine willkommene Abwechslung. Einkaufsmöglichkeiten, Dinge des täglichen Bedarfes, wie Friseur, Apotheke usw. lassen sich fußläufig gut erreichen bzw. sind mit dem PKW oder Fahrrad in Kürze zu erreichen.

Objektanschrift

06792 Sandersdorf-Brehna
Straße der Bauarbeiter 9 -12

Sonstiges

Die Nebenkosten sind für 3 Person kalkuliert. Bei Anmietung dieser Wohnung werden Genossenschaftsanteile in Höhe von 1.232,00 EUR fällig.

Vereinbaren Sie mit uns einen Besichtigungstermin und machen Sie sich ein eigenes Bild. Wir freuen uns auf Sie!

Für Rückfragen und Informationen steht Ihnen Frau Seidlitz unter der Tel.-Nr.: 03494/3673-32 oder E-Mail: seidlitz@wgwolfen.de gern zur Verfügung.

Haben wir Ihr Interesse geweckt?

Vereinbaren Sie mit uns einen Besichtigungstermin und machen Sie sich ein eigenes Bild. Wir freuen uns auf Sie!
Andrea Meinicke
03494/3673-29
Grit Seidlitz
03494367332
Wichtige Dokumente, die wir von Ihnen brauchen:

Kontakt

Sie wollen mehr erfahren oder einen Besichtigungstermin vereinbaren?
Dann nehmen Sie gern hier direkt Kontakt mit uns auf.
Wohnungs-
Genossenschaft
Wolfen EG
Frau Grit Seidlitz
Fritz-Weineck-Straße 14a,
06766 Bitterfeld-Wolfen


    captcha

    Bitte den Captcha-Code aus dem Bild hier eingeben:


    Welche Daten im Einzelnen gespeichert werden und wer Zugriff hat, erfahren Sie in unseren Datenschutzbedingungen.

    Ich stimme der Speicherung und Nutzung meiner Daten laut der Datenschutzerklärung zu und bin mit der Verarbeitung meiner Daten durch den Anbieter für die Beantwortung meiner Kontakt- und Informationsanfrage einverstanden.

    Meine Einwilligung kann ich jederzeit für die Zukunft wiederrufen.